3.850 €/lună
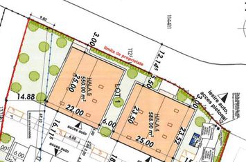
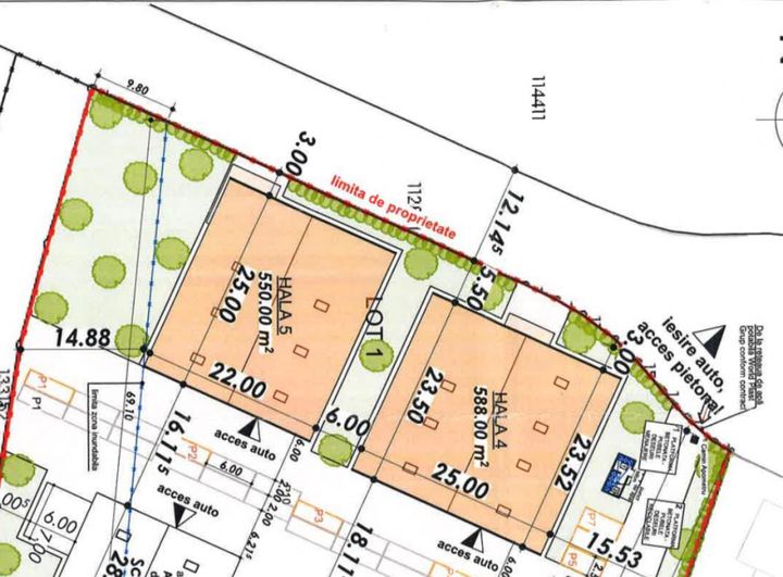
Suprafața utilă 550 mp
An construcție 2026
Destinație -
Structură -
Etaje clădire -
Înălțime -
Suprafața totală -
Stadiu construcție -

Descriere

Oferim spre închiriere un spațiu industrial amplasat într-o locație strategică din Popesti-Leordeni, în zona Danubiana Cartier. Hala dispune de o suprafață totală de 550 mp, care reprezintă spațiu util dedicat activităților de depozitare sau producție.

Construită din panouri isopan de 8 cm grosime (pereti) si din panou isopan de 10 cm grosime (tavan), hala beneficiază de o bună izolație termică și fonică, asigurând un mediu de lucru eficient. Puterea electrică instalată este de 150-250 kW, în funcție de necesitățile clientului.

Printre facilități se numără:

- Acces TIR cu înălțime și lungime de 4 m, ce permite manevrarea ușoară a vehiculelor de mare tonaj.

- Ușă de acces pietonal pentru o intrare rapidă și comodă în spațiu.

- Inaltime interioara 7 m.

Acest spațiu industrial este ideal pentru diverse activități de showroom având o locație excelentă în apropiere de principalele rute de acces. Disponibilitatea pentru

Oferim spre închiriere un spațiu industrial amplasat într-o locație strategică din Popesti-Leordeni, în zona Danubiana Cartier. Hala dispune de o suprafață totală de 550 mp, care reprezintă spațiu util dedicat activităților de depozitare sau producție.

Construită din panouri isopan de 8 cm grosime (pereti) si din panou isopan de 10 cm grosime (tavan), hala beneficiază de o bună izolație termică și fonică, asigurând un mediu de lucru eficient. Puterea electrică instalată este de 150-250 kW, în funcție de necesitățile clientului.

Printre facilități se numără:

- Acces TIR cu înălțime și lungime de 4 m, ce permite manevrarea ușoară a vehiculelor de mare tonaj.

- Ușă de acces pietonal pentru o intrare rapidă și comodă în spațiu.

- Inaltime interioara 7 m.

Acest spațiu industrial este ideal pentru diverse activități de showroom având o locație excelentă în apropiere de principalele rute de acces. Disponibilitatea pentru personalizare a puterii electrice face ca acest spațiu să fie extrem de versatil și potrivit pentru afaceri în expansiune.

Localizare

Informații utile

Zona Popesti-Leordeni
Baie 1
Suprafața construită (desfășurată) 550 mp
Suprafața utilă 550 mp
An construcție 2026
   
Ultima actualizare: 26 martie 2026
Ești interesat?