4.500 €/lună + TVA
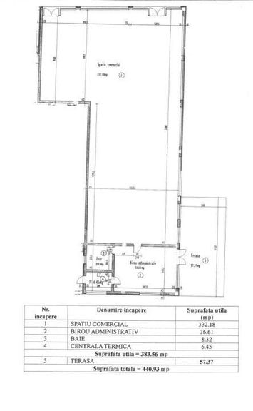
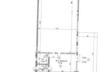
Suprafața utilă 440 mp
An construcție 2020
Tip imobil În bloc
Etaj P / P+4
Etaje clădire 4
Vitrină 4
Înălțime -
Stadiu construcție -

Descriere

ID: CP2329421



Spatiu comercial de inchiriat in Cluj-Napoca, zona Marasti.

Are o suprafata totala disponibila de 440,93 mp si se afla la parterul unui bloc de apartamente. Constructie noua

Parcare subterana.



Spatiul beneficiaza de toate utilitatile:

- Centrala termica

- Contorizare separata

- Vitrina mare la strada.

- Acces din spate



Pretul de inchiriere este de 4500 euro/luna + TVA



GOLD PARK / Commercial Real Estate - dedicata exclusiv segmentului comercial, am ajuns sa intelegem cele mai profunde nevoi ale clientilor si sa oferim cele mai bune locatii din piata pentru fiecare business.



Pentru mai multe oferte asemanatoare, contacteaza-ne acum!

Localizare

Informații utile

Zona Marasti
Baie 1
Nr. terase 1
Parcare 1
Suprafața construită (desfășurată) 500 mp
Suprafața utilă 440 mp
An construcție 2020
Tip imobil În bloc
Etaj P / P+4
Etaje clădire 4
Vitrină 4
   
Finisaje/Utilităţi
Dotari: afișare logo pe clădire
Info imobil
Confort: i, Acces: acces secundar marfă
Alte informatii
Descriere bai:Grupuri sanitare amenajate si utilate
Alte suprafețe
D - DESCHIDERE: 7 mp,VITRINĂ: 4 mp
Ultima actualizare: 29 September 2025
Ești interesat?