3.360 €/lună
Suprafața utilă 336 mp
An construcție 2023
Tip imobil -
Etaj P
Etaje clădire -
Vitrină 20
Înălțime -
Stadiu construcție -

Descriere

Apostu Estate va pune la dispozitie un spatiu comercial central, cu suprafata de 336 mp, situat pe str. Marasesti nr. 52/A, intr-una dintre cele mai circulate si avantajoase zone ale Aradului.

Localizare premium:
Pozitionat langa sensul giratoriu de la Intim, in apropierea:

Registrului Comertului,
Spitalului Judetean,
Primariei Arad,
scolilor, mall-ului si altor puncte urbane importante.
Accesul este excelent, iar vizibilitatea foarte mare - perfect pentru afaceri ce vor expunere si trafic.

Detalii despre spatiu:
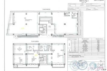
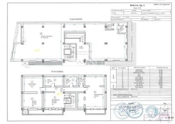
Suprafata totala 336 mp, dispusa pe 2 niveluri (conform schitelor)
Amenajat in prezent ca showroom pentru gresie si faianta
Posibilitate de reconfigurare dupa necesitatile viitorului chirias
Centrala proprie -> costuri mici de intretinere
Renovari si finisaje premium, investitii de aproximativ 100.000 euro
3 locuri de parcare chiar in fata spatiului + suficiente locuri pe strada

Pretul este negociabil si se discuta in privat in functie de perioada contractuala si

Apostu Estate va pune la dispozitie un spatiu comercial central, cu suprafata de 336 mp, situat pe str. Marasesti nr. 52/A, intr-una dintre cele mai circulate si avantajoase zone ale Aradului.

Localizare premium:
Pozitionat langa sensul giratoriu de la Intim, in apropierea:

Registrului Comertului,
Spitalului Judetean,
Primariei Arad,
scolilor, mall-ului si altor puncte urbane importante.
Accesul este excelent, iar vizibilitatea foarte mare - perfect pentru afaceri ce vor expunere si trafic.

Detalii despre spatiu:
Suprafata totala 336 mp, dispusa pe 2 niveluri (conform schitelor)
Amenajat in prezent ca showroom pentru gresie si faianta
Posibilitate de reconfigurare dupa necesitatile viitorului chirias
Centrala proprie -> costuri mici de intretinere
Renovari si finisaje premium, investitii de aproximativ 100.000 euro
3 locuri de parcare chiar in fata spatiului + suficiente locuri pe strada

Pretul este negociabil si se discuta in privat in functie de perioada contractuala si conditiile dorite.
Contractul poate fi incheiat si pe termen lung.

Un spatiu excelent pentru showroom, birouri, clinici, sedii de firme, spa, salon de infrumusetare/ hairstyling, magazine specializate si multe alte activitati comerciale.

Pentru detalii suplimentare, schite si vizionari, Apostu Estate va sta la dispozitie.
ID imobil: CP2828582

Localizare

Informații utile

Zona Banu Maracine
Băi 3
Parcare 3
Suprafața construită (desfășurată) 403 mp
Suprafața utilă 336 mp
An construcție 2023
Etaj P
Vitrină 20
Finisaje/Utilităţi
Dotari: sistem de alarma; afișare logo pe clădire, Sistem de ventilație, Echipamente moderne / silențioase, Sistem electric inteligent
Info imobil
Camere speciale: vestiar, Izolatie exterioara: fatada ventilata, Confort: i, Acces: acces secundar marfă, Vedere: vedere spre oraș
Alte informatii
Descriere bai:Grupuri sanitare amenajate si utilate
Descriere parcari:Parcare deschisa
Alte suprafețe
VITRINĂ: 20 mp
Destinații
Destinatii: comercial
Ultima actualizare: 26 februarie 2026
Ești interesat?