110.000 €
Tip proprietate Casă
Camere 3
Băi + Gr. sanitare 2
An construcție 2023
Suprafața utilă 92 mp
Suprafață teren 450 mp
Teren liber(curte) -
Deschidere -

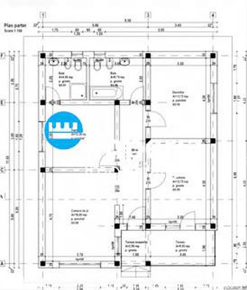
Descriere

Casa individuala de vanzare, cu un regim de inaltime P+M in zona Lunca Cetatuii - acces Mega Image 5 drumuri, avand 3 camere si 2 bai, cu o suprafata de 85 mp, terasa si teren 450 mp. Casa construita in anul 2023, structura pe cadre din beton armat si caramida porotherm. Imobilul este situat in apropiere de statie, zona comerciala, supermarket, fastfood.



Compartimentare:

Parter: Living, baia cu cada, bucatarie , 2 dormitoare mari dintre care unul cu baie proprie, camerele fiind decomandate.

Izolată interior, exterior cu polistiren grafitat, planșeu izolat cu vata minerala de 15 cm.

Fosa, Eon energie și gaze naturale, apavital, Internet.



Pentru mai multe detalii va sunt la dispozitia dvs - Alexandru Coptu tel.: 0741.558.783

ID intern: 6248

Localizare

Informații utile

Zona Lunca Cetatuii
Băi 2
Suprafața construită (desfășurată) 140 mp
Tip proprietate Casă
Camere 3
An construcție 2023
Suprafața utilă 92 mp
Suprafață teren 450 mp
Finisaje/Utilităţi
Marmura, Granit, Gresie, Parchet, Faianta, Geamuri, Geamuri term. pvc, Calorifere da
Info imobil
Mobilat, Semi-mobilat, Incalzire cu centrala proprie, Strazi amenajate, Strazi amenajate, Acces mixt, Apa, Curent electric, Gaz, Amplasat in imobil nou
Vecinătăţi
magazine, scoala, gradinita, transport in comun, hotel, parc, metrou
Destinații
Rezidenta
Ultima actualizare: 10 octombrie 2023
Ești interesat?