5.800 €/lună
Tip imobil -
Suprafața utilă 625 mp
An construcție 2022
Clasă birouri Clasa A
Etaj 3
Locuri parcare -
Înălțime -
Stadiu construcție -

Descriere

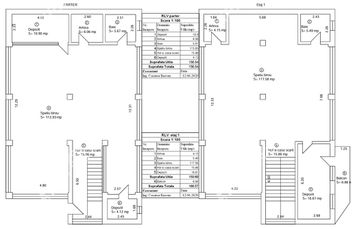
Se inchiriaza cladire multifunctionala moderna, cu o suprafata utila de 625 m², distribuita pe 4 niveluri conectate printr-o casa a scarii comuna, potrivita pentru business-uri diverse precum birouri IT, centre educationale sau servicii comerciale.
Compartimentare detaliata:
Cladirea este structurata pe 4 niveluri accesibile printr-o casa a scarii comuna, cu spatii flexibile ce pot fi adaptate pentru birouri open-space, sali de clasa, zone de receptie sau depozitare – fiecare etaj putand functiona independent. Include holuri spatioase, etaje bine iluminate si facilitati moderne, cu finisaje practice: ferestre termopan pentru izolare termica si fonica, usi securizate si podele rezistente la trafic intens. Orientarea sudica asigura lumina naturala abundenta, iar cladirea are echipare cu sisteme fotovoltaice, aliniindu-se trendurilor ecologice din Sibiu. Toate utilitatile sunt conectate: apa, canalizare, curent trifazic, gaz metan, internet fibra optica si cablu TV, cu

Se inchiriaza cladire multifunctionala moderna, cu o suprafata utila de 625 m², distribuita pe 4 niveluri conectate printr-o casa a scarii comuna, potrivita pentru business-uri diverse precum birouri IT, centre educationale sau servicii comerciale.
Compartimentare detaliata:
Cladirea este structurata pe 4 niveluri accesibile printr-o casa a scarii comuna, cu spatii flexibile ce pot fi adaptate pentru birouri open-space, sali de clasa, zone de receptie sau depozitare – fiecare etaj putand functiona independent. Include holuri spatioase, etaje bine iluminate si facilitati moderne, cu finisaje practice: ferestre termopan pentru izolare termica si fonica, usi securizate si podele rezistente la trafic intens. Orientarea sudica asigura lumina naturala abundenta, iar cladirea are echipare cu sisteme fotovoltaice, aliniindu-se trendurilor ecologice din Sibiu. Toate utilitatile sunt conectate: apa, canalizare, curent trifazic, gaz metan, internet fibra optica si cablu TV, cu contorizare individuala per etaj pentru eficienta.
Proprietatea se remarca prin parcare generoasa: minim 20 de locuri interioare securizate, plus 5-8 locuri la strada, facilitand accesul pentru echipe mari sau evenimente. Terasa mare exterioara este ideala pentru pauze sau intalniri, iar zona separata inchisa, amenajata cu gratar si spatii pentru relaxare, este perfecta pentru team building, evenimente corporate sau petreceri de firma – un atu rar pentru spatii business in Sibiu. Aceasta cladire ofera un randament excelent pentru chiriasi, combinand locatia strategica cu facilitati premium, atragand clienti din IT, educatie sau servicii prin costuri operationale reduse si potential de crestere.
Facilitati si extra
Interior: 4 niveluri cu casa a scarii comuna; spatii flexibile pentru birouri/IT/educatie; finisaje moderne (termopan, izolatie); utilitati complete (gaz, fibra optica); fotovoltaice pentru energie verde (Prosumator - Consumul de curent fiind 0 in anumite cazuri); stare excelenta, adaptabila.
Exterior: Parcare 20+ locuri interioare + 5-8 strada; terasa spatioasa; zona inchisa cu gratar pentru team building/evenimente; acces vad comercial.
Utilitati si securitate: Curent trifazic, gaz, apa; contorizare individuala; supraveghere posibila; acces transport public excelent.
Alte avantaje: Flexibilitate inchiriere per etaj sau integral; ideal pentru business sustenabil; cerere mare in zona; proximitate servicii (magazine, scoli, stadion); costuri reduse prin eficienta energetica; oportunitati de extindere.
Cladirea este disponibila imediat pentru inchiriere integrala la 5.800 €/luna sau per etaj separat la 1.500 €/luna fiecare, oferind flexibilitate maxima pentru chiriasi mici sau mari, cu potential ridicat pentru reconversie si beneficii de scalabilitate. ID intern: 3025

Localizare

Informații utile

Zona Calea Poplacii
Băi 4
Nr. balcoane 3
Suprafața construită (desfășurată) 750 mp
Suprafața utilă 625 mp
An construcție 2022
Clasă birouri Clasa A
Etaj 3
Finisaje/Utilităţi
Marmura, Granit, Gresie, Parchet, Lavabil, Faianta, Geamuri, Geamuri term. pvc, Calorifere da, Interfon
Info imobil
Mobilat, Semi-mobilat, Incalzire cu centrala proprie, Strazi amenajate, Apa, Curent electric, Gaz, Telefon, Canalizare, Amplasat in imobil nou
Vecinătăţi
magazine, restaurant, scoala, gradinita, transport in comun, hotel, parc, piata
Acte
Contr. vanzare-cumparare
Destinații
Birou
Ultima actualizare: 25 februarie 2026
Ești interesat?