198.000 €
Comision
Cumpărător
0%
Tip proprietate Apartament
Camere 5
Băi + Gr. sanitare 2
An construcție 2025
Etaj 1/P+3
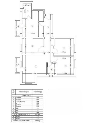
Suprafața utilă 105 mp
Suprafață teren -
Teren liber(curte) -

Descriere

Va doriti un apartament ...ALTFEL? Un apartament elegant si unic in zona lui?
Mai rar un apartament cu 5 camere, nu-i asa?
Este si la 10 minute fata de metrou, o zona usor conectata cu restul orasului si deservita de o multitudine de magazine ce fac usoara aprovizionarea zilnica.
Apartamentul face parte dintr-un imobil dat in folosinta in 2025 si locuit integral, situat pe strada Drumul Dealul Bistrii din sectorul 4. Aici deja incepe sa se formeze o comunitate mica, familii tinere incantate de amenajarea noului cuib.

Zona este linistita, desi foarte aproape de arterele principale, o zona ce combina vile si blocuri cu regim mic de inaltime.
Din punct de vedere al constructiei, recomandam cu incredere:
-Infrastructura din fundatie pe radier general, din beton armat;
-stalpi si diafragme din beton armat;
-ziduri exterioare caramida 25CM;
-termosistem 10CM si densitate EPS80.

La interior:
-pereti interiori caramida 12CM;
-tavane extensibile Barisol;
-usa metalica acces

Va doriti un apartament ...ALTFEL? Un apartament elegant si unic in zona lui?
Mai rar un apartament cu 5 camere, nu-i asa?
Este si la 10 minute fata de metrou, o zona usor conectata cu restul orasului si deservita de o multitudine de magazine ce fac usoara aprovizionarea zilnica.
Apartamentul face parte dintr-un imobil dat in folosinta in 2025 si locuit integral, situat pe strada Drumul Dealul Bistrii din sectorul 4. Aici deja incepe sa se formeze o comunitate mica, familii tinere incantate de amenajarea noului cuib.

Zona este linistita, desi foarte aproape de arterele principale, o zona ce combina vile si blocuri cu regim mic de inaltime.
Din punct de vedere al constructiei, recomandam cu incredere:
-Infrastructura din fundatie pe radier general, din beton armat;
-stalpi si diafragme din beton armat;
-ziduri exterioare caramida 25CM;
-termosistem 10CM si densitate EPS80.

La interior:
-pereti interiori caramida 12CM;
-tavane extensibile Barisol;
-usa metalica acces apartament;
-incalzire in pardoseala+parchet special;
-centrala termica proprie Romstal, in condensatie;
-tamplarie pvc Salamander.

Aproape toti locatarii beneficiaza de loc de parcare. Doar dumneavoastra, viitorii proprietari ai acestui apartament, veti beneficia de DOUA LOCURI DE PARCARE, ACOPERITE, in proprietate, ce se achizitioneaza separat.

Apartamentul nu a fost locuit niciodata, asadar totul este nou. Este un spatiu modern si confortabil, compartimentat practic si versatil.
Un spatiu foarte luminos, cu atmosfera calda si placuta ce poate acomoda foarte confortabil o familie cu 2 sau 3 copii.

Asadar, daca sunteti persoane ce pun valoare pe confort, ambianta si eleganta, va invitam sa vizionati acest apartament modern, ce va poate deveni camin.

Localizare

Informații utile

Zona Aparatorii Patriei
Nr. dormitoare 4
Băi 2
Nr. balcoane 2
Parcare 2
Tip proprietate Apartament
Camere 5
An construcție 2025
Etaj 1/P+3
Suprafața utilă 105 mp
Finisaje/Utilităţi
Finisaje: parchet laminat, Gresie, Vopsea lavabila, Geamuri termoizolante - pvc; geamuri tripan, Dotari: aer conditionat, Usa metalica, Iluminat exterior; cadă
Info imobil
Mobilat: nemobilat, Stare interior: finisat modern, Bucatarie: deschisa separata, Compartimentare: decomandat, Usi interior: celulare, Proprietarul plateste: telefon, Cablu tv, Stadiu constructie: finalizat, Structura: beton, Strazi limitrofe: asfaltate, Orientari: est-vest
Alte informatii
Ultima consolidare: 2025
Descriere bai:Geam la baie
Vecinătăţi
transport public; metrou aparatorii patriei
Alte suprafețe
STU - SUPRAFAȚA TOTALĂ UTILĂ: 111 mp,SUPRAFAȚĂ TERASE/BALCOANE: 6 mp
Detalii comerciale
Comision cumpărător: 0%

Fotografii 360°

Ultima actualizare: 24 November 2025
Ești interesat?