327.375 € + TVA
Comision
Cumpărător
0%
Tip proprietate Apartament
Camere 4
Băi + Gr. sanitare 2
An construcție 2025
Etaj 1/P+5
Suprafața utilă 130.95 mp
Suprafață teren -
Teren liber(curte) -

Descriere

Birou Vanzari Direct Dezvoltator MILUNA RESIDENCE din strada Bd. Pipera nr. 1D-7/1 (fost Bd. Pipera nr.1),

Pret plata avans 15 % 327.375 EURO + TVA

Parcare subterana la pretul de 20.000 EURO + TVA

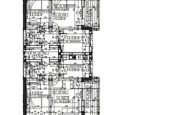
Apartament 4 camere decomandat cu o suprafata totala utila de 130,95 mp .

Compartimentare :

- Hol 1 : 6,30 mp
- Hol 2 : 5,00 mp
- Baie 1 : 4,80 mp
- Living : 19,15 mp
- Bucatarie : 10,90 mp
- Dormitor 1 : 13,70 mp
- Hol 3 : 5,00 mp
- Baie 2 : 4,80 mp
- Dormitor 2 : 13,70 mp
- Dormitor 3 : 19,15 mp
- Dressing : 10,90 mp

- Balcon 1 : 8,75 mp
- Balcon 2 : 8,75 mp

Un nou complex rezidential la cel mai ridicat nivel de calitate,

Situat in Pipera la 2 minute de Bulevardul Pipera ( in spatele benzinariei OMV ) , format din 6 blocuri cu un regim de inaltime de P plus 5 etaje si cu un numar total de 184 de unitati, compus din apartamente cu 2, 3, 4 si 5 camere decomandate si apartamente de 3 respectiv 4 camere cu gradina proprie.

Acest proiect se diferentiaza de toate

Birou Vanzari Direct Dezvoltator MILUNA RESIDENCE din strada Bd. Pipera nr. 1D-7/1 (fost Bd. Pipera nr.1),

Pret plata avans 15 % 327.375 EURO + TVA

Parcare subterana la pretul de 20.000 EURO + TVA

Apartament 4 camere decomandat cu o suprafata totala utila de 130,95 mp .

Compartimentare :

- Hol 1 : 6,30 mp
- Hol 2 : 5,00 mp
- Baie 1 : 4,80 mp
- Living : 19,15 mp
- Bucatarie : 10,90 mp
- Dormitor 1 : 13,70 mp
- Hol 3 : 5,00 mp
- Baie 2 : 4,80 mp
- Dormitor 2 : 13,70 mp
- Dormitor 3 : 19,15 mp
- Dressing : 10,90 mp

- Balcon 1 : 8,75 mp
- Balcon 2 : 8,75 mp

Un nou complex rezidential la cel mai ridicat nivel de calitate,

Situat in Pipera la 2 minute de Bulevardul Pipera ( in spatele benzinariei OMV ) , format din 6 blocuri cu un regim de inaltime de P plus 5 etaje si cu un numar total de 184 de unitati, compus din apartamente cu 2, 3, 4 si 5 camere decomandate si apartamente de 3 respectiv 4 camere cu gradina proprie.

Acest proiect se diferentiaza de toate celelalte proiecte actuale prin detalii foarte importante pentru orice familie cum ar fi : spatii de recreere, locuri de parcare subterane, calitatea constructiei, dar si a finisajelor.

Regasim materiale de constructie si finisaje din cele mai de top si calitate firme din Italia, Grecia, Austria, astfel incat in materie de finisaje, gresie/faianta vom regasi marca Marazzi.

Parchetul de 10 mm trafic intens laminat produs de Egger (Austria).

Tamplaria pvc gri antracit , de 7 camere, cu geamuri tripane (geamul exterior fiind cu reflexie pentru razele UV si caldura, iar geamul interior este tratat pentru recuperarea caldurii), marca fiind Salamander, lider absolut in aceasta materie pe piata Romaniei.

Obiectele sanitare de cea mai buna calitate Premium. Fiecare baie este echipata/utilata.

Centrala termica de bloc in 3 cascade , incalzire in pardoseala .

Aparataj electric premium, instalatia electrica pe cupru plin de 1,5 mm , respectiv 2,5 mm .

Constructia este realizata pe cadre din beton armat B 400 respectiv B 500 si compartimentarea realizata cu caramida BCA de 300 mm compartimentarea exterioara si 150 mm compartimentarea interioara , fapt pentru care constructia in sine confera siguranta si confort.

Atat tencuiala cat si sapa sunt de cea mai buna calitate, fiind mecanizate.

Izolatia constructiei, una de foarte buna calitate atat termica cat si fonica ( Polistiren expandat EPS 100 de 10 mm respectiv vata minerala bazaltica / ignifuga ).

Pentru fiecare scara de bloc beneficiem de lift de ultima generatie, silentios , marca Schindler ,( cu o capacitate de 6 persoane / lift ).

Usile de la intrare in apartamente vor fi din otel, anti-efractie, placate cu lemn, incuietoare tip paianjen si umplute la interior cu vata minerala bazaltica , iar usile de interior produse in Grecia, gama Premium, pe diferite nuante.

Atat pe casa scarii cat si pe holuri vom regasi granit natural, iar pe fiecare etaj hidrant anti-incendiu.

Complexul Rezidential beneficiaza atat de paza fixa cat si de supraveghere video.

Apartamentele vor fi predate la cheie cu toate bransamentele (Enel, Engie, Apavol ) , respectiv fibra optica / internet .

Fiecare unitate locativa primeste cadou un AC .

In curtea ansamblului se afla un spatiu verde generos ce serveste ca si curte comuna pentru toti locatarii complexului si dispune de parcari subterane cu suprafete generoase / buncar ALA.

Ansamblul se situeaza in imediata apropiere de Bulevardul Pipera , cu acces rapid catre o impresionanta zona comerciala aflata in imediata apropiere (Pipera Plaza - OMV) .

De asemenea in zona se pot regasi o varietate de unitati de invatamant publice si private, atat scoli cat si gradinite.

Poze tip randare cu titlul de prezentare.

Pentru mai multe detalii despre acest imobil ne puteti contacta:

Birou vanzari dezvoltator MILUNA RESIDENCE 0753.804.351

Serviciul nou oferit de MILUNA RESIDENCE ! Solicita acum VIZIONARE ONLINE pentru aceasta proprietate !

Aceasta proprietate se poate achizitiona prin orice tip de credit bancar.

Departamentul nostru financiar va sta la dispozitie GRATUIT (comision 0%) pentru:

- identificarea celei mai bune solutii de finantare;
- intocmirea dosarului bancar complet;
- obtinerea rapida a creditului necesar achizitiei.

Beneficiati de un serviciu ALL IN ONE, cu acces direct la ofertele tuturor bancilor comerciale din Romania.

Se accepta inclusiv venituri din strainatate, astfel incat fiecare client sa poata cumpara in cele mai avantajoase conditii.

Localizare

ADRESA EXACTĂ: Ilfov, ORAŞ VOLUNTARI, bld. Pipera, nr. 1D-7/1

Informații utile

Zona Pipera
Nr. dormitoare 3
Băi 2
Nr. balcoane 2
Suprafața construită (desfășurată) 157 mp
Tip proprietate Apartament
Camere 4
An construcție 2025
Etaj 1/P+5
Suprafața utilă 130.95 mp
Finisaje/Utilităţi
Finisaje: parchet laminat, Gresie, Sapa turnata, Vopsea lavabila, Glet, Faianta, Geamuri termoizolante - aluminium, Ferestre panoramice, Dotari: aer conditionat, Lift, Interfon, Usa metalica, Usa antifoc, Usa antiefractie, Senzor pentru incendii, Spatiu agrement, Cablu, Wireless, Fibra optica
Info imobil
Mobilat: nemobilat, Stare interior: nou, Compartimentare: decomandat, Bucatarie: nemobilata, Inchisa, Usi interior: celulare, Proprietarul plateste: apa, Gaze naturale, Electricitate, Canal, Colectare gunoi, Cablu tv, Intretinere, Contract inchiriere: neinchiriat, Vizionari: imobil liber, Vechime imobil: nou, Stadiu constructie: in constructie, Stare imobil: exceptionala, Tipuri de apartamente: 2 camere, 3 camere, 4 camere, 4+ camere, Penthouse, Structura: beton, Cadre, Bca, Pereti exteriori: beton, Bca, Izolatie exterioara: tencuiala, Polistiren expandat, Vata bazaltica, Pereti interiori: beton, Bca, Fatada: vopsea decorativa, Tencuiala decorativa, Acoperis: beton - terasa circulabila, Confort: i, Lux, Izolatie interioara: izolatie fonica, Plansee: beton armat, Fundatie: cu ziduri (beton turnat), Cu ziduri (blocuri beton), Cu stalpi (beton), Cu stalpi (blocuri beton), Pe piloni (beton), Strazi limitrofe: amenajate, Pietruite, Asfaltate, Orientari: sud - est, Sud, Sud - vest, Acces: acces mixt, Vedere: vedere mixta
Alte informatii
Descriere parcari:Parcare Subterana la pretul de 20.000 euro + TVA
Detalii localizare:OMV PIPERA
Vecinătăţi
magazine, piata, gradinita, scoala, transport public, metrou, parc, lac, padure, drum judetean, autostrada, hotel, aeroport, bar/pub, restaurant, mall/centru comercial, loc de joaca, ansamblu rezidential, spital, taxi
Acte
Acte de proprietate: contract vanzare cumparare, Cadastru, Intabulare, Certificat energetic, Proces verbal de receptie, Carte funciara, Certificat de urbanism, Dobandire: cumparare, Interdictii: fara sarcini, Achitare: achitat integral, Credit bancar, Forma titlului de proprietate: persoana juridica
Alte suprafețe
STU - SUPRAFAȚA TOTALĂ UTILĂ: 130.95 mp,SUPRAFAȚĂ TERASE/BALCOANE: 17.5 mp
Destinații
Destinatii: rezidenta
Detalii comerciale
Comision cumpărător: 0%
Ultima actualizare: 10 noiembrie 2025
Ești interesat?