239.950 €
Comision
Cumpărător
0%
Tip proprietate Apartament
Camere 3
Băi + Gr. sanitare 2
An construcție 2026
Etaj 1/P+3
Suprafața utilă 65.53 mp
Suprafață teren -
Teren liber(curte) -

Descriere

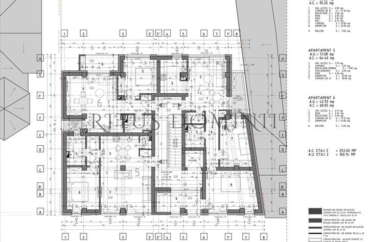
Ritus Dominii va ofera spre vanzare un apartament excelent pozitionat in imediata apropiere de Teatrul de Stat si Calea Republicii. Aceasta locuinta dispune de 3 camere, si 2 bai, si o dubla-orientare spre Sud-Vest si Nord-Est, fiind imbelsugata de lumina pe tot parcursul zilei. Camera de zi va ofera confortul a 14.16mp, iar bucataria inchisa, 7.26mp. Balconul de 7.04mp care extinde dormitorul matrimonial, este surpriza-surpriza, acoperit, oferindu-va un spatiu generos in care sa va petreceti verile calduroase impreuna cu familia, in aer liber. Suprafata utila fara balcon este de 65.53mp, iar cea construita 95.25mp. Curtea acestui condominiu rezidential dispune asemenea de locuri de parcare private care pot fi achizitionate separat.



Acestea fiind spuse, spre ca v-am captat interesul, si va invit cu drag sa iesim impreuna la o vizionare!

Localizare

Informații utile

Zona Ultracentral
Nr. dormitoare 2
Băi 2
Nr. balcoane 1
Suprafața construită (desfășurată) 95.25 mp
Tip proprietate Apartament
Camere 3
An construcție 2026
Etaj 1/P+3
Suprafața utilă 65.53 mp
Finisaje/Utilităţi
Finisaje: geamuri termoizolante - aluminium, Dotari: iluminat exterior, Rulouri electrice
Info imobil
Mobilat: nemobilat, Stare interior: semifinisat, Bucatarie: deschisa separata, Compartimentare: semi-decomandat, Proprietarul plateste: telefon, Cablu tv, Stadiu constructie: in constructie, Structura: bca, Confort: lux, Strazi limitrofe: asfaltate, Orientari: est
Vecinătăţi
transport public
Alte suprafețe
SUPRAFAȚĂ TERASE/BALCOANE: 7.04 mp
Detalii comerciale
Comision cumpărător: 0%
Ultima actualizare: 20 aprilie 2026
Ești interesat?