149.000 €
Tip proprietate Apartament
Camere 3
Băi + Gr. sanitare 2
An construcție 1984
Etaj 3/P+4
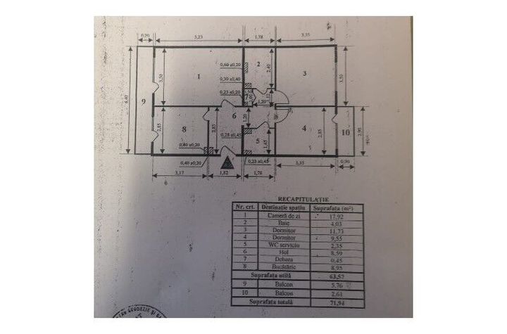
Suprafața utilă 72 mp
Suprafață teren -
Teren liber(curte) -

Descriere

Titan - Stadionul National vanzare apartament de 3 camere confort 1.

Apartamentul in suprafata utila de 72 mp este decomandat, se afla intr un bloc de 4 etaje la etajul 3, bloc construit in anul 1984 reabilitat termic.

Incazirea in apartament se face cu centrala termica proprie.

Apartamentul beneficiaza de 2 bai, 2 balcoane.

Necesita renovare.

Acte pregatite pentru vanzare.

Daca aceasta proprietate prezinta interes sunati va rog la 0735 549 343

Localizare

Informații utile

Zona Titan
Nr. dormitoare 2
Baie 1
Gr. sanitare 1
Nr. balcoane 2
Suprafața construită (desfășurată) 82 mp
Tip proprietate Apartament
Camere 3
An construcție 1984
Etaj 3/P+4
Suprafața utilă 72 mp
   
Finisaje/Utilităţi
Finisaje: parchet masiv, Gresie, Faianta, Geamuri termoizolante - pvc, Dotari: aer conditionat
Info imobil
Compartimentare: decomandat, Usi interior: lemn masiv, Bucatarie: inchisa, Vizionari: imobil liber, Tipuri de apartamente: 3 camere, Structura: beton, Prefabricat, Pereti exteriori: beton, Izolatie exterioara: tencuiala, Polistiren expandat, Pereti interiori: beton, Confort: i, Plansee: beton armat, Fundatie: cu ziduri (beton turnat), Acces: acces stradal, Acces prin spate, Acces mixt
Alte informatii
Reabilitare termica: da
Vecinătăţi
magazine, gradinita, scoala, transport public, parc
Acte
Acte de proprietate: contract vanzare cumparare, Cadastru, Intabulare, Rol fiscal, Certificat energetic, Dobandire: cumparare, Interdictii: fara sarcini, Achitare: achitat integral
Destinații
Destinatii: rezidenta
Ultima actualizare: 9 martie 2026
Ești interesat?