134.000 €
Comision
Cumpărător
2.5%
Tip proprietate Apartament
Camere 3
Băi + Gr. sanitare 1
An construcție 1980
Etaj 3/P+4
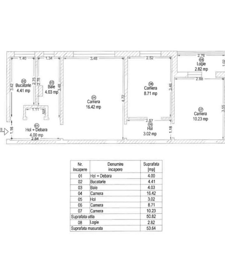
Suprafața utilă 54 mp
Suprafață teren -
Teren liber(curte) -

Descriere

Blitz, va propune se vanzare un apartament modern cu 3 camere , renovat in anul 2025, 54mp, balconul deschis, situat la 10 minute de mers pe jos de centrul Timisoarei.

Apartamentul este compus din 3 camere, bucatarie , baie , este completa mobilat si utilat, disponibilitate imediata.

Localizare

Informații utile

Zona Cetatii
Baie 1
Tip proprietate Apartament
Camere 3
An construcție 1980
Etaj 3/P+4
Suprafața utilă 54 mp
   
Finisaje/Utilităţi
Parchet, Gresie, Interfon
Destinații
Rezidenta
Detalii comerciale
Comision cumpărător: 2.5%
Ultima actualizare: 31 martie 2026
Ești interesat?