176.328 € + TVA
Comision
Cumpărător
0%
Tip proprietate Apartament
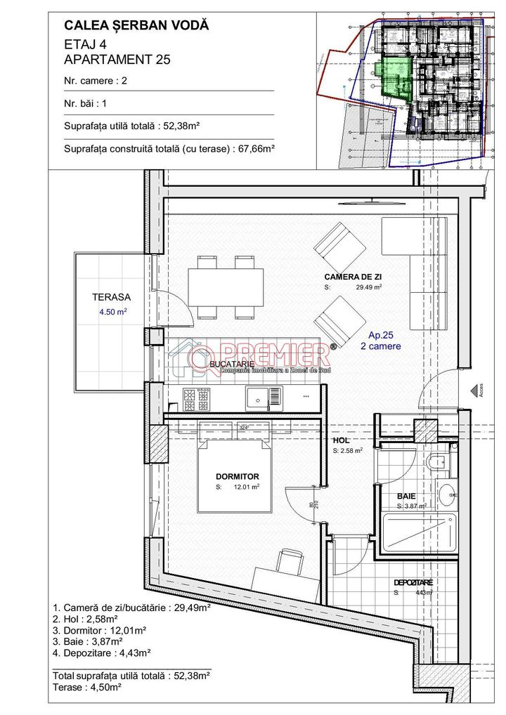
Camere 2
Băi + Gr. sanitare 1
An construcție 2025
Etaj 4/P+4
Suprafața utilă 56.88 mp
Suprafață teren -
Teren liber(curte) -

Descriere

Cadou loc de parcare subteran



Descoperiti un proiect rezidential exclusivist, situat intre Parcul Tineretului si Parcul Carol, una dintre cele mai frumoase zone centrale din Bucuresti.

Imobilul, aflat in constructie, imbina designul modern cu finisaje premium si tehnologii actuale pentru confort si eficienta energetica.



Beneficiati acum de oferta promotionala de lansare, disponibila pentru o perioada limitata.

Un proiect rar, care ofera proximitate fata de natura si acces rapid la centrul orasului.



Pret fara TVA

Localizare

Informații utile

Zona Tineretului
Nr. dormitoare 1
Baie 1
Nr. balcoane 1
Suprafața construită (desfășurată) 68 mp
Tip proprietate Apartament
Camere 2
An construcție 2025
Etaj 4/P+4
Suprafața utilă 56.88 mp
Finisaje/Utilităţi
Finisaje: parchet triplu stratificat, Gresie, Faianta, Geamuri termoizolante - pvc, Dotari: lift, Usa metalica, Fibra optica
Info imobil
Stare interior: nou, Compartimentare: decomandat, Bucatarie: inchisa, Vechime imobil: nou, Stadiu constructie: in constructie, Stare imobil: exceptionala, Structura: beton, Cadre, Confort: i, Plansee: beton armat, Acces: acces stradal, Strazi limitrofe: amenajate
Alte informatii
Serviciul nou oferit de PREMIER Imobiliare! Solicita acum VIZIONARE ONLINE pentru aceasta proprietate!

Aceasta proprietate se poate achizitiona prin orice tip de credit bancar.

Departamentul nostru financiar Premier Credit Hub va sta la dispozitie GRATUIT (comision 0%) pentru:
- identificarea celei mai bune solutii de finantare;
- intocmirea dosarului bancar complet;
- obtinerea rapida a creditului necesar achizitiei.

Beneficiati de un serviciu ALL IN ONE, cu acces direct la ofertele tuturor bancilor comerciale din Romania.
Se accepta inclusiv venituri din strainatate, astfel incat fiecare client sa poata cumpara in cele mai avantajoase conditii.

Solicitati acum o simulare de credit direct din anunt sau cereti detalii consultantului Premier Imobiliare!
Vecinătăţi
magazine, piata, scoala, transport public, metrou, parc, lac
Alte suprafețe
STU - SUPRAFAȚA TOTALĂ UTILĂ: 56.88 mp,SUPRAFAȚĂ TERASE/BALCOANE: 4.5 mp
Destinații
Destinatii: rezidenta
Detalii comerciale
Comision cumpărător: 0%
Ultima actualizare: 6 februarie 2026
Ești interesat?