320 €/lună
Tip proprietate Apartament
Camere 2
Băi + Gr. sanitare 1
An construcție -
Etaj 3/P+3
Suprafața utilă 54 mp
Suprafață teren -
Teren liber(curte) -

Descriere

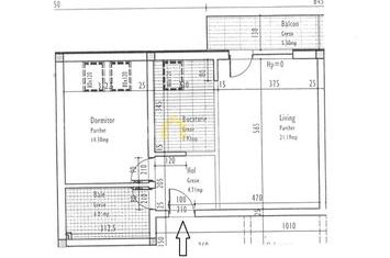
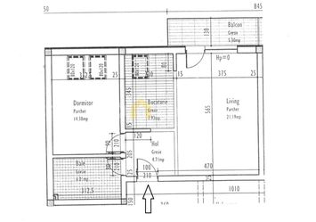
Apartament disponibil spre închiriere, situat în Florești, pe strada Șesul de Sus, la mansardă, etajul 3 al unui bloc din anul 2008.



Compartimentare: bucătărie cu living open-space, dormitor, baie și balcon. Livingul are acces către balcon, iar dormitorul și bucătăria sunt iluminate natural prin ferestre tip VELUX.

Apartamentul beneficiază de un loc de parcare amplasat pe lateralul blocului.



Proprietatea necesită zugrăvire și mici reparații, iar proprietarul este dispus să compenseze costurile lucrărilor, în funcție de termenii stabiliți cu viitorul chiriaș.

Localizare

Informații utile

Zona Floresti
Baie 1
Nr. balcoane 1
Suprafața construită (desfășurată) 58 mp
Tip proprietate Apartament
Camere 2
Etaj 3/P+3
Suprafața utilă 54 mp
Finisaje/Utilităţi
Parchet
Destinații
Rezidenta
Ultima actualizare: 11 februarie 2026
Ești interesat?