170.000 €
Tip proprietate Casă
Camere 5
Băi + Gr. sanitare 3
An construcție 2025
Suprafața utilă 143.64 mp
Suprafață teren 260 mp
Teren liber(curte) -
Deschidere -

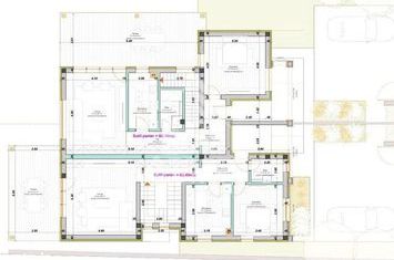
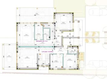
Descriere

Apostu Estate va ofera spre vanzare o jumatate de duplex, in curs de constructie, in centrul comunei Giarmata Mare.

Aceasta proprietate se remarca prin spatiile generoase, foarte luminoase, terasa mare, pozitie centrala, parc in apropiere.



Suprafata acestei jumatati este de 143.64 mp, compusa astfel:

Parter:

- hol acces,

- camera generoasa

- hol si casa scarii

- baie

- bucatarie inchisa cu acces pe terasa

- living foarte spatios cu iesire pe terasa



Etaj:

- 3 dormitoare

- 2 baie marI



Va oferim consultanta financiara gratuita.

Pentru vizionare sau alte informatii suplimentare va stau cu drag la dispozitie.

Localizare

Informații utile

Zona Giarmata
Nr. dormitoare 4
Băi 3
Nr. terase 1
Parcare 2
Tip proprietate Casă
Camere 5
An construcție 2025
Suprafața utilă 143.64 mp
Suprafață teren 260 mp
Finisaje/Utilităţi
Finisaje: vopsea lavabila, Faianta, Geamuri termoizolante - pvc; geamuri tripan, Dotari: iluminat exterior; cabină de duș, Cadă
Info imobil
Stare interior: finisat modern, Bucatarie: inchisa, Proprietarul plateste: telefon, Cablu tv, Stadiu constructie: in constructie, Izolatie interioara: polistiren extrudat, Acoperis: tigla ceramica, Structura: caramida, Tip vila: calcan, Strazi limitrofe: pietruite
Alte informatii
Descriere bai:Geam la baie
Vecinătăţi
transport public
Ultima actualizare: 23 ianuarie 2026
Ești interesat?