150.000 € + TVA
Tip proprietate Casă
Camere 4
Băi + Gr. sanitare 2
An construcție 2025
Suprafața utilă 128 mp
Suprafață teren 412 mp
Teren liber(curte) 123 mp
Deschidere -

Descriere

Berceni Villas Residence - Case individuale moderne cu teren generos
Direct dezvoltator | Comision 0% | Predare: decembrie 2025

Premier Imobiliare va prezinta Berceni Villas Residence, un proiect format din 15 case individuale, situat intr-o zona linistita din comuna Berceni, cu acces rapid catre Bucuresti. Ansamblul este dezvoltat in etape, iar etapa II se afla in constructie, cu livrare programata pentru decembrie 2025.

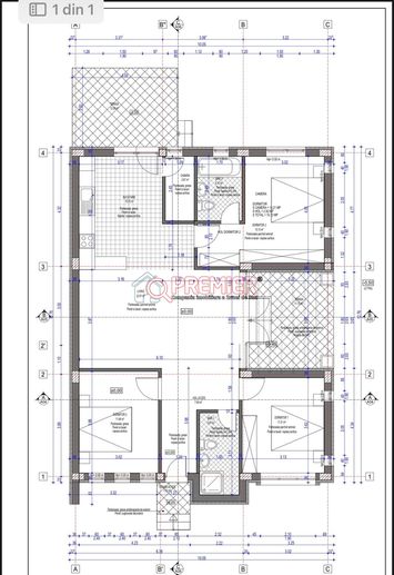
Fiecare locuinta beneficiaza de un teren de 412 mp, o suprafata utila de 111 mp si terase insumand 64 mp. Spatiul este compartimentat practic: living generos, bucatarie separata, 3 dormitoare, 2 bai, holuri largi, spatii tehnice si pod pentru depozitare.

Structura este realizata din beton armat si zidarie BCA, cu izolatie de 10 cm, tamplarie PVC Salamander tripan si incalzire in pardoseala. Utilitatile includ centrala termica proprie, put forat, fosa septica, gaze si curent electric. Curtea este imprejmuita cu gard din zidarie si lamele metalice.

Finisajele sunt

Berceni Villas Residence - Case individuale moderne cu teren generos
Direct dezvoltator | Comision 0% | Predare: decembrie 2025

Premier Imobiliare va prezinta Berceni Villas Residence, un proiect format din 15 case individuale, situat intr-o zona linistita din comuna Berceni, cu acces rapid catre Bucuresti. Ansamblul este dezvoltat in etape, iar etapa II se afla in constructie, cu livrare programata pentru decembrie 2025.

Fiecare locuinta beneficiaza de un teren de 412 mp, o suprafata utila de 111 mp si terase insumand 64 mp. Spatiul este compartimentat practic: living generos, bucatarie separata, 3 dormitoare, 2 bai, holuri largi, spatii tehnice si pod pentru depozitare.

Structura este realizata din beton armat si zidarie BCA, cu izolatie de 10 cm, tamplarie PVC Salamander tripan si incalzire in pardoseala. Utilitatile includ centrala termica proprie, put forat, fosa septica, gaze si curent electric. Curtea este imprejmuita cu gard din zidarie si lamele metalice.

Finisajele sunt premium, marca Delta Studio, cu optiunea de personalizare in functie de preferintele cumparatorului.

Avantaje: case individuale, curte amenajata, infrastructura modernizata si acces facil catre Capitala.

Vlad - Premier Imobiliare
Telefon: 0727 736 313

Berceni Villas Residence - locuinte moderne, eficiente si confortabile, ideale pentru familii care apreciaza intimitatea si calitatea.

Localizare

Informații utile

Zona Comuna Berceni
Nr. dormitoare 3
Băi 2
Suprafața construită (desfășurată) 145 mp
Tip proprietate Casă
Camere 4
An construcție 2025
Suprafața utilă 128 mp
Suprafață teren 412 mp
Teren liber(curte) 123 mp
Finisaje/Utilităţi
Finisaje: parchet laminat, Gresie, Sapa turnata, Vopsea lavabila, Faianta, Geamuri termoizolante - pvc, Dotari: usa antifoc, Usa antiefractie, Cablu, Wireless, Fibra optica
Info imobil
Stare interior: nou, Compartimentare: semi-decomandat, Usi interior: celulare, Camere speciale: camera utilitati, Curte: individuala, Vechime imobil: nou, Stadiu constructie: finalizat, Stare imobil: exceptionala, Structura: beton, Cadre, Pereti exteriori: bca, Pereti interiori: bca, Fatada: vopsea decorativa, Tencuiala decorativa, Acoperis: beton - terasa circulabila, Plansee: beton armat, Tip vila: individuala, Fundatie: cu ziduri (beton turnat), Cu ziduri (caramida), Acces: acces stradal, Strazi limitrofe: amenajate, Orientari: sud - est, Vedere: vedere mixta
Alte informatii
Detalii inaltime:Parter + pod
Serviciul nou oferit de PREMIER Imobiliare! Solicita acum VIZIONARE ONLINE pentru aceasta proprietate!

Aceasta proprietate se poate achizitiona prin orice tip de credit bancar.

Departamentul nostru financiar Premier Credit Hub va sta la dispozitie GRATUIT (comision 0%) pentru:
- identificarea celei mai bune solutii de finantare;
- intocmirea dosarului bancar complet;
- obtinerea rapida a creditului necesar achizitiei.

Beneficiati de un serviciu ALL IN ONE, cu acces direct la ofertele tuturor bancilor comerciale din Romania.
Se accepta inclusiv venituri din strainatate, astfel incat fiecare client sa poata cumpara in cele mai avantajoase conditii.

Solicitati acum o simulare de credit direct din anunt sau cereti detalii consultantului Premier Imobiliare!
Vecinătăţi
magazine, gradinita, scoala, transport public, drum judetean, drum national, ansamblu rezidential
Alte suprafețe
AMPRENTA CLADIRE: 128 mp,STU - SUPRAFAȚA TOTALĂ UTILĂ: 128 mp
Ultima actualizare: 6 februarie 2026
Ești interesat?