69.000 €
Comision
Cumpărător
0%
Tip proprietate Vilă P+1
Camere 2
Băi + Gr. sanitare 1
An construcție 1949
Suprafața utilă 35 mp
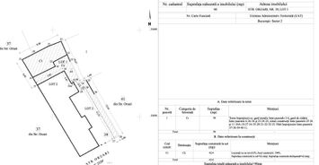
Suprafață teren 90 mp
Teren liber(curte) 90 mp
Deschidere -

Descriere

OFERTA CU 0% COMISION PENTRU CUMPARATOR!

Pe strada Orzari langa intersectia cu strada Agricultori, se vinde o proprietate compusa din teren de 90 mp si o ruina ce a reprezentat o casa de 2 camere si dependinte din caramida, construita conform documentelor in 1949, cu amprenta la sol de 42,4 mp din cei 90 mp totali de teren. Aceasta suprafata de teren a fost dezmembrata juridic insa nu si in fapt, cu gard, insa se poate separa daca se doreste. Avand in vedere ca locuinta in stare de ruina este intabulata in Cartea Funciara si se regaseste in documentele de proprietate, se poate construi pe actualul amplasament un imobil nou. Mai mult, in prezent in spatele casei la calcan este demarat un proiect imobiliar cu un bloc boutique, ceea ce ar fi confortabil pentru viitorul santier.

Localizare

ADRESA EXACTĂ: Bucuresti, str. Orzari

Informații utile

Zona Calarasilor
Nr. dormitoare 1
Baie 1
Suprafața construită (desfășurată) 42.4 mp
Tip proprietate Vilă P+1
Camere 2
An construcție 1949
Suprafața utilă 35 mp
Suprafață teren 90 mp
Teren liber(curte) 90 mp
Finisaje/Utilităţi
Dotari: iluminat exterior
Info imobil
Stare interior: necesita renovare, Proprietarul plateste: telefon, Cablu tv, Curte: individuala, Comuna, Structura: caramida, Tip vila: individuala, Strazi limitrofe: asfaltate
Alte informatii
Ultima consolidare: 1949
Vecinătăţi
transport public; calea calarasi, matei voievod, agricultori, piata muncii, metrou, unatc
Alte suprafețe
AMPRENTA CLADIRE: 42.4 mp
Detalii comerciale
Comision cumpărător: 0%
Ultima actualizare: 8 December 2025
Ești interesat?