2.500 €/lună
Suprafața utilă 250 mp
An construcție -
Tip imobil -
Etaj P / P+3
Etaje clădire 3
Vitrină -
Înălțime -
Stadiu construcție -

Descriere

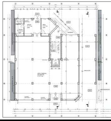
Blitz prezintă spre închiriere un spațiu comercial generos, cu suprafața de 250 mp și înălțime interioară de 4,2 m, ideal pentru desfășurarea unei game variate de activități comerciale.

Imobilul beneficiază de 5 căi de acces, dintre care 4 în partea frontală și una în partea din spate, oferind flexibilitate maximă în organizarea și utilizarea spațiului. Datorită compartimentării versatile, acesta poate fi adaptat și configurat la cerere pentru diferite domenii de activitate.

Spațiul este prevăzut cu 2 toalete existente, existând posibilitatea amenajării încă a 2 grupuri sanitare, în funcție de necesitățile chiriașului.

Situat într-o zonă bună, cu vad comercial și acces facil, imobilul este potrivit pentru:
– showroom
– magazin alimentar
– sediu bancar
– restaurant
– clinică sau alte activități comerciale

La cerere, spațiul poate fi compartimentat, amenajat și finisat de către proprietar, în funcție de

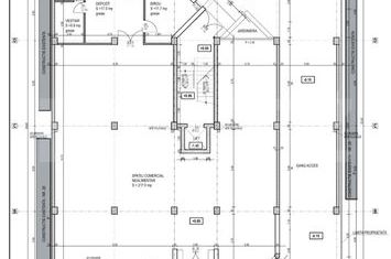
Blitz prezintă spre închiriere un spațiu comercial generos, cu suprafața de 250 mp și înălțime interioară de 4,2 m, ideal pentru desfășurarea unei game variate de activități comerciale.

Imobilul beneficiază de 5 căi de acces, dintre care 4 în partea frontală și una în partea din spate, oferind flexibilitate maximă în organizarea și utilizarea spațiului. Datorită compartimentării versatile, acesta poate fi adaptat și configurat la cerere pentru diferite domenii de activitate.

Spațiul este prevăzut cu 2 toalete existente, existând posibilitatea amenajării încă a 2 grupuri sanitare, în funcție de necesitățile chiriașului.

Situat într-o zonă bună, cu vad comercial și acces facil, imobilul este potrivit pentru:
– showroom
– magazin alimentar
– sediu bancar
– restaurant
– clinică sau alte activități comerciale

La cerere, spațiul poate fi compartimentat, amenajat și finisat de către proprietar, în funcție de specificul activității și cerințele clientului.

Pentru detalii suplimentare și programarea unei vizionări, vă invităm să ne contactați.

Echipa Blitz

Localizare

Informații utile

Zona Satu Mare
Băi 4
Suprafața utilă 250 mp
Etaj P / P+3
Etaje clădire 3
   
Ultima actualizare: 13 martie 2026
Ești interesat?