270.000 €
Comision
Cumpărător
0%
Suprafața utilă 79 mp
An construcție -
Tip imobil -
Etaj P
Etaje clădire -
Vitrină -
Înălțime -
Stadiu construcție -

Descriere

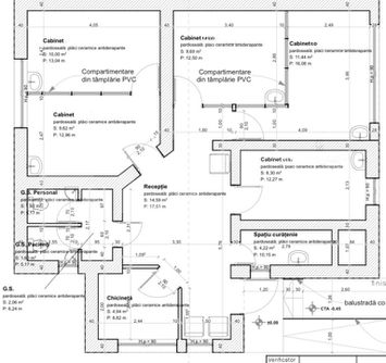
Blitz va propune spre achizitie in exclusivitate cu 0% comision la cumparator, spatiu comercial cu destinatie medicala, situat stradal, in zona Facultatii de Medicina, pe bulevardul Gheorghe Chitu.

Spatiul este situat la parter si are intrare separata, fiind renovat integral in anul 2021 conform normelor in vigoare.

Constructie solida din caramida cu geamuri termopan, incalzire prin pardoseala, centrala proprie pe gaz prin condensare si sistem de ventilatie cu recuperare de caldura SABIANA, reprezinta doar cativa dintre factorii principali de confort ai spatiului in care iti poti desfasura imediat activitatea medicala.



Se vinde mobilat utilat si este disponibil imediat.

Va asteptam cu drag la vizionare!

Localizare

Informații utile

Zona George Enescu
Băi 2
Suprafața utilă 79 mp
Etaj P
Finisaje/Utilităţi
Gresie, Linoleum, Interfon, Sistem de alarma
Vecinătăţi
scoala, parc, restaurant, transport in comun
Detalii comerciale
Comision cumpărător: 0%
Ultima actualizare: 19 decembrie 2025
Ești interesat?
Ofertă promovată exclusiv de Blitz Romania