290.000 € + TVA
Comision
Cumpărător
2%
Tip proprietate Vilă P+1
Camere 5
Băi + Gr. sanitare 3
An construcție -
Suprafața utilă 180 mp
Suprafață teren 270 mp
Teren liber(curte) -
Deschidere 25 m

Descriere

BLITZ vă propune spre vânzare o casă tip duplex în zona Vivo, zona fiind frumoasă cu un view superb. Regimul de înălțime este S+P+E.
Construcția este nouă și s-au folosit materiale calitative:
- Polistiren de 20 cm eps 80 cm pe fațadă;
- Izolatie acoperis cu sistem Bauder ( 10 ani garantie) izolat cu 20 cm polistiren EPS 120 densitate;
-Ziduri de caramida separate intre case cu polistiren de 5 cm EPS 100 densitate;
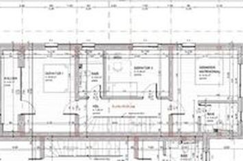
Compartimentarea este următoarea:
La demisol:
-spațiu tehnic de 54,84mp;
La parter:
-hol;
-Living cu bucatarie;
-birou (dormitor);
-baie;
-terasă;
La etaj:
-hol;
-3 Dormitoare;
-2 băi;
-dressing;
-balcon.
Casa dispune de 3 locuri de parcare.
Suprafata casei este 180mp+270mp teren+19 mp terasa.
Este ideală pentru o familie numeroasa !
Termen de predare cu CF mai 2026 !
Poze cu caracter orientativ de la constructiile finalizate

BLITZ vă propune spre vânzare o casă tip duplex în zona Vivo, zona fiind frumoasă cu un view superb. Regimul de înălțime este S+P+E.
Construcția este nouă și s-au folosit materiale calitative:
- Polistiren de 20 cm eps 80 cm pe fațadă;
- Izolatie acoperis cu sistem Bauder ( 10 ani garantie) izolat cu 20 cm polistiren EPS 120 densitate;
-Ziduri de caramida separate intre case cu polistiren de 5 cm EPS 100 densitate;
Compartimentarea este următoarea:
La demisol:
-spațiu tehnic de 54,84mp;
La parter:
-hol;
-Living cu bucatarie;
-birou (dormitor);
-baie;
-terasă;
La etaj:
-hol;
-3 Dormitoare;
-2 băi;
-dressing;
-balcon.
Casa dispune de 3 locuri de parcare.
Suprafata casei este 180mp+270mp teren+19 mp terasa.
Este ideală pentru o familie numeroasa !
Termen de predare cu CF mai 2026 !
Poze cu caracter orientativ de la constructiile finalizate !

Localizare

Informații utile

Zona Floresti
Băi 3
Nr. balcoane 1
Tip proprietate Vilă P+1
Camere 5
Suprafața utilă 180 mp
Suprafață teren 270 mp
Deschidere 25 m
Destinații
Rezidenta
Detalii comerciale
Comision cumpărător: 2%
Ultima actualizare: 20 October 2025
Ești interesat?