255.000 €
Tip proprietate Vilă P+1
Camere 4
Băi + Gr. sanitare 2
An construcție 2025
Suprafața utilă 120 mp
Suprafață teren 420 mp
Teren liber(curte) -
Deschidere 3 m

Descriere

Vila individuala de vanzare situata în zona Primariei din Selimbar, ce dispune de o suprafata utila de 120 mp cu terasa acoperita 26 mp si 420 mp teren, aceasta este structurata pe P+E si pod, predare vara 2026, la stadiul de cheie la exterior si la stadiul de alb la interior.
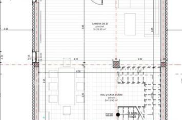
Casa are 120 mp utili, compusi pe parter dintr-o camera de zi generoasa cu o suprafata de 32 mp, bucatarie de 14 mp, o baie de 4 mp, si un hol de acces cu spatiu pentru pantofar si cuier. Etajul este compus dintr-un dormitor matrimonial in suprafata de 16 mp, al doilea dormitor este spatios cu o suprafata de 13 mp cel de-al treilea dormitor are o suprafata de 11 mp, fiind o optiune ideala pentru o camera de oaspeti sau o camera pentru copii. Holul cu casa scarii are o suprafata de 23 mp, fiind suficient de mare pentru a se circula fara probleme, baia de la etaj este dotata cu un geam de aerisire si are suprafata de 7 mp, fiind utila si functionala, iar cea de la parter 4 mp. De asemenea, locuinta dispune

Vila individuala de vanzare situata în zona Primariei din Selimbar, ce dispune de o suprafata utila de 120 mp cu terasa acoperita 26 mp si 420 mp teren, aceasta este structurata pe P+E si pod, predare vara 2026, la stadiul de cheie la exterior si la stadiul de alb la interior.
Casa are 120 mp utili, compusi pe parter dintr-o camera de zi generoasa cu o suprafata de 32 mp, bucatarie de 14 mp, o baie de 4 mp, si un hol de acces cu spatiu pentru pantofar si cuier. Etajul este compus dintr-un dormitor matrimonial in suprafata de 16 mp, al doilea dormitor este spatios cu o suprafata de 13 mp cel de-al treilea dormitor are o suprafata de 11 mp, fiind o optiune ideala pentru o camera de oaspeti sau o camera pentru copii. Holul cu casa scarii are o suprafata de 23 mp, fiind suficient de mare pentru a se circula fara probleme, baia de la etaj este dotata cu un geam de aerisire si are suprafata de 7 mp, fiind utila si functionala, iar cea de la parter 4 mp. De asemenea, locuinta dispune de un pod, spatiu pentru depozitare, accesibil prin intermediul unei scari rabatabile, cu suprafata de aproximativ 50 mp.
Separat de suprafata utila locuinta dispune de o terasa acoperita in suprafata de 26 mp.
Casa este construita cu zidarie din caramida, izolata termic exterior cu polistiren expandat si zugravita cu tencuiala decorativa.
Casele in interior se predau la stadiu de alb, cu urmatoarele dotari: incalzire in pardoseala, distribuitor, automatizare, pompe la P + E, alimentare pentru termostat in fiecare incapere, instalatii sanitare, instalatii electrice cu tablou si sigurante pe fiecare nivel, centrala termica in condensare, geamuri termopan cu tamplarie PVC de culoare POLAREICHE cu profil de 5 camere, 3 foi sticla, care ofera un confort bun (luminozitate naturala, izoltie fonica cat si termica), peretii in interior sunt tencuiti si zugraviti cu lavabila alba, usa termopan la intrare si usa de acces spre terasa/gradina.
Casele pe exterior se predau astfel: izolatie termica cu polistiren de 10 cm, plasa, lavabila de exterior, jgheaburi si burlane legate la pluviala, pervaz la geamuri, alimentare pentru camere de supraveghere si alarma, sistem iluminat exterior, poarta acces pietonal cu alimentare pentru interfon, poarta culisanta pe sina acces auto cu alimentare pentru automatizare. Curtea pavata in zonele de acces pietonal si parcare autoturismeiar restul tip gradina.
Facilitati in zona: Shopping City Selimbar, scoala,gradinita, magazine alimentare si nealimentare, statii pentru mijloace de transport in comun.
Valoarea de achizitie la stadiul de alb este de 255.000 euro negociabil, se poate achizitiona si prin intermediul unui credit bancar. ID intern 3196
 

Localizare

Informații utile

Zona Selimbar
Băi 2
Suprafața construită (desfășurată) 140 mp
Tip proprietate Vilă P+1
Camere 4
An construcție 2025
Suprafața utilă 120 mp
Suprafață teren 420 mp
Deschidere 3 m
   
Finisaje/Utilităţi
Sapa, Glet, Lavabil, Geamuri, Geamuri term. pvc, Calorifere nu, Scara interioara
Info imobil
Strazi amenajate, Apa, Curent electric, Canalizare, Amplasat in imobil nou
Destinații
Rezidenta
Ultima actualizare: 19 februarie 2026
Ești interesat?