155.000 € + TVA
Comision
Cumpărător
3%
Tip proprietate Vilă P+1
Camere 4
Băi + Gr. sanitare 3
An construcție 2024
Suprafața utilă 114 mp
Suprafață teren 110 mp
Teren liber(curte) -
Deschidere 8 m

Descriere

Blitz ofera spre vanzare case cuplate cu predare la stadiul de semifinisat, atent si armonios pozitionate intr-un cartier privat in zona Terra.

Numarul total de unitati locative este de 30 case si au un regim de inaltime P + E.

Locatia este una retrasa, linistita, si in acelas timp in apropierea tuturor facilitatilor: magazine, cresa / gradinita, statie de bus, farmacie, parc de joaca pentru copii.

Complexul propune 4 tipuri de compartimentare cu suprafete cuprinse intre 110 mp - 120 mp si 100 teren - 300 teren. Achizitionarea unei case din etapa de proiect / constructie permite modificari pe partea interioara a proiectului.

Proiectul propunere urmatoarea compartimentare:

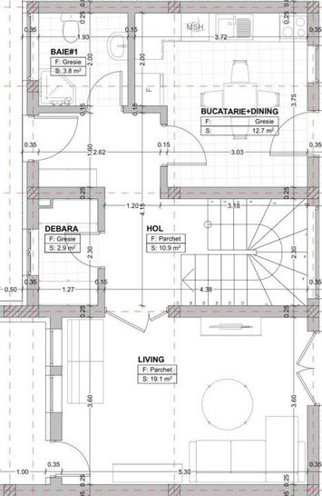
Parter - hol acces, baie, bucatarie + dining, living, debara.
Etaj - hol, trei dormitoare, doua bai una fiind matrimoniala si doua balcoane.

Podul se poate utiliza ca si spatiu pentru depozitare.

Predarea se face la stadiul de semifinisat : peretii gletuiti, incalzire in pardoseala la

Blitz ofera spre vanzare case cuplate cu predare la stadiul de semifinisat, atent si armonios pozitionate intr-un cartier privat in zona Terra.

Numarul total de unitati locative este de 30 case si au un regim de inaltime P + E.

Locatia este una retrasa, linistita, si in acelas timp in apropierea tuturor facilitatilor: magazine, cresa / gradinita, statie de bus, farmacie, parc de joaca pentru copii.

Complexul propune 4 tipuri de compartimentare cu suprafete cuprinse intre 110 mp - 120 mp si 100 teren - 300 teren. Achizitionarea unei case din etapa de proiect / constructie permite modificari pe partea interioara a proiectului.

Proiectul propunere urmatoarea compartimentare:

Parter - hol acces, baie, bucatarie + dining, living, debara.
Etaj - hol, trei dormitoare, doua bai una fiind matrimoniala si doua balcoane.

Podul se poate utiliza ca si spatiu pentru depozitare.

Predarea se face la stadiul de semifinisat : peretii gletuiti, incalzire in pardoseala la parter si etaj, geamuri termopan , sape autonivelante, instalatii sanitare si electrice.

Exteriorul case se preda izolat termic, constructiile sunt din caramida si acoperite cu tabla.
Terenul aferent caselor va fi delimitat cu gard si imprejmuit + amenajata o parcare.

Utilitati: apa, gaz, curent, canalizare. In pretul afisat nu este inclus TVA.

Localizare

Informații utile

Zona Floresti
Băi 3
Nr. balcoane 2
Tip proprietate Vilă P+1
Camere 4
An construcție 2024
Suprafața utilă 114 mp
Suprafață teren 110 mp
Deschidere 8 m
   
Destinații
Rezidenta
Detalii comerciale
Comision cumpărător: 3%
Ultima actualizare: 3 aprilie 2026
Ești interesat?