131.000 €
Tip proprietate Apartament
Camere 3
Băi + Gr. sanitare 2
An construcție 2015
Etaj 2/P+5
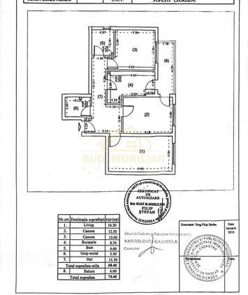
Suprafața utilă 74.4 mp
Suprafață teren -
Teren liber(curte) -

Descriere

Comision cumparator 0%



Apartament cu 3 camere, decomandat, 69 mp situat la etajul 2 din 5, intr-un imobil modern, construit in 2015 si dotat cu lift.

Compartimentare : living,2 dormitoare, bucatarie inchisa, 2 grupuri sanitare,balcon inchis

Imobilul se vinde mobilat si utilat

Centrala proprie, 2 aparate de aer conditionat,masina de spalat rufe si masina de spalat vase incluse

Usa metalica si interfon

Loc de parcare in cota indiviza

cu acces rapid la metrou , 3 minute pe jos pana la campusul scolar

Pret 131.000 Euro

Localizare

Informații utile

Zona Popesti-Leordeni
Nr. dormitoare 2
Băi 2
Nr. balcoane 1
Suprafața construită (desfășurată) 80 mp
Tip proprietate Apartament
Camere 3
An construcție 2015
Etaj 2/P+5
Suprafața utilă 74.4 mp
Finisaje/Utilităţi
Finisaje: gresie, Faianta, Geamuri termoizolante - pvc, Dotari: aer conditionat, Interfon, Usa metalica
Info imobil
Mobilat: mobilat, Stil mobilier: clasic, Stare mobilier: buna, Materiale mobilier: pal/pfl, Mdf, Stare interior: in stare foarte buna, Bucatarie: mobilata, Modern mobilata, Complet echipata, Masina de spalat vase, Inchisa, Compartimentare: decomandat, Usi interior: mdf, Vizionari: imobil locuit, Vechime imobil: nou, Stadiu constructie: finalizat, Stare imobil: buna, Tipuri de apartamente: garsoniere, 2 camere, 3 camere, Structura: beton, Pereti exteriori: caramida, Pereti interiori: caramida, Fatada: vopsea decorativa, Acoperis: tigla metalica, Confort: i, Izolatie exterioara: polistiren expandat, Plansee: beton armat, Fundatie: cu ziduri (beton turnat), Acces: acces stradal, Strazi limitrofe: amenajate, Orientari: sud - vest, Vedere: vedere mixta
Alte informatii
Contactati echipa %SudImobiliarExpert.ro% pentru cele mai bune oferte imobiliare din Popesti Leordeni si Zona de Sud
Vecinătăţi
magazine, gradinita, scoala, transport public, metrou, parc, restaurant, loc de joaca
Acte
Acte de proprietate: contract vanzare cumparare, Dobandire: cumparare, Interdictii: fara sarcini, Achitare: achitat integral, Forma titlului de proprietate: persoana fizica
Alte suprafețe
STU - SUPRAFAȚA TOTALĂ UTILĂ: 74.4 mp,SUPRAFAȚĂ TERASE/BALCOANE: 6 mp
Destinații
Destinatii: rezidenta
Ultima actualizare: 17 November 2025
Ești interesat?