274.750 € + TVA
Comision
Cumpărător
2.5%
Tip proprietate Apartament
Camere 3
Băi + Gr. sanitare 1
An construcție 2025
Etaj 3/P+5
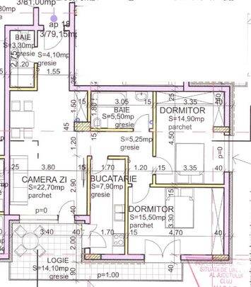
Suprafața utilă 79 mp
Suprafață teren -
Teren liber(curte) -

Descriere

Blitz ofera spre vanzare un apartament de 3 camere cu 2 bai in zona premium , intr-un imobil in constructie cu termen de finalizare in ultima parte a anului 2026. Un nou început prinde contur în inima orașului tău! Proiect imobiliar modern, care îmbină armonios locuințele spațioase cu funcțiuni comerciale utile pentru comunitate: 40 de apartamente cu 2 si 3 camere, cu suprafețe între 53 și 92 mp, la care se adaugă balcoane și terase generoase – între 5 mp și 14 mp cu acces direct și parcări dedicate 2 nivele subterane de parcări, accesibile prin rampă auto.
Confortul tău contează – fiecare apartament va fi dotat cu: Încălzire în pardoseală Imobilul va fidotat cu centrala pe bloc. Tâmplărie PVC cu 3 foi de sticlă Izolație exterioară performantă
Totul pentru un consum energetic optim, un climat interior plăcut în orice anotimp si costuri reduse.
Pretul afisat este pentru un avans de 40%, 30% la predarea apartamentului iar restul la CVC in

Blitz ofera spre vanzare un apartament de 3 camere cu 2 bai in zona premium , intr-un imobil in constructie cu termen de finalizare in ultima parte a anului 2026. Un nou început prinde contur în inima orașului tău! Proiect imobiliar modern, care îmbină armonios locuințele spațioase cu funcțiuni comerciale utile pentru comunitate: 40 de apartamente cu 2 si 3 camere, cu suprafețe între 53 și 92 mp, la care se adaugă balcoane și terase generoase – între 5 mp și 14 mp cu acces direct și parcări dedicate 2 nivele subterane de parcări, accesibile prin rampă auto.
Confortul tău contează – fiecare apartament va fi dotat cu: Încălzire în pardoseală Imobilul va fidotat cu centrala pe bloc. Tâmplărie PVC cu 3 foi de sticlă Izolație exterioară performantă
Totul pentru un consum energetic optim, un climat interior plăcut în orice anotimp si costuri reduse.
Pretul afisat este pentru un avans de 40%, 30% la predarea apartamentului iar restul la CVC in August-Septembrie.
Se accepta plata si prin credit bancar. Exista posibilitatea achizitiei unui loc de parcare in subteran la 20000 Euro + TVA. Preturile afisate nu contin TVA.

Localizare

Informații utile

Zona Cluj-Napoca
Baie 1
Nr. balcoane 1
Tip proprietate Apartament
Camere 3
An construcție 2025
Etaj 3/P+5
Suprafața utilă 79 mp
Finisaje/Utilităţi
Lift
Vecinătăţi
parc, restaurant
Destinații
Rezidenta
Detalii comerciale
Comision cumpărător: 2.5%
Ultima actualizare: 28 martie 2026
Ești interesat?