187.000 € + TVA
Comision
Cumpărător
2%
Tip proprietate Apartament
Camere 2
Băi + Gr. sanitare -
An construcție 2020
Etaj P
Suprafața utilă 93 mp
Suprafață teren -
Teren liber(curte) -

Descriere

Cauți să cumperi un spațiu comercial în Cartierul Arhitecților?

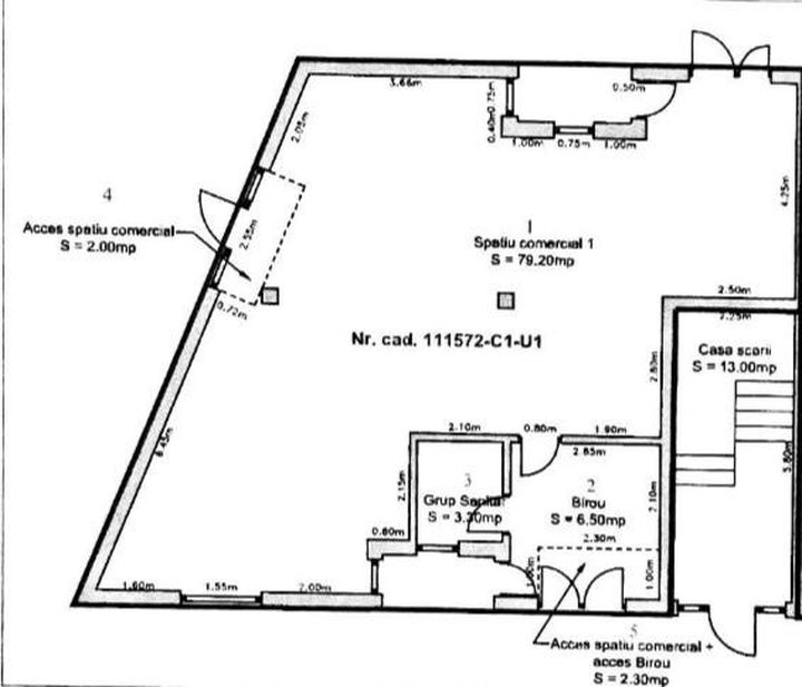
Îți propunem un spațiu comercial modern în suprafață utilă de 93,30 mp, situat într-o zonă cu vizibilitate excelentă din strada principală și vad comercial.

Compartimentare eficientă open space, birou și grup sanitar, 2 căi de acces - intrare principală și acces secundar pentru aprovizionare.

Spațiul beneficiază de vitrine mari, centrală proprie, sistem de alarmă și sistem de supraveghere, curent trifazic precum și de 4 locuri de parcare.

Prețul este de 187.000 Euro + TVA.

Pentru a te convinge de potențialul acestui spațiu te invit să programezi o vizionare!

Localizare

Informații utile

Zona Cisnadie
Nr. balcoane 2
Tip proprietate Apartament
Camere 2
An construcție 2020
Etaj P
Suprafața utilă 93 mp
   
Vecinătăţi
parc, restaurant, transport in comun
Destinații
Comercial
Detalii comerciale
Comision cumpărător: 2%
Ultima actualizare: 4 noiembrie 2025
Ești interesat?